El presidente municipal se reunió junto a la presidenta del Superior Tribunal de Justicia (STJ), Susana Medina, con quien dialogó sobre la construcción del edificio donde funcionará el Juzgado de Paz.
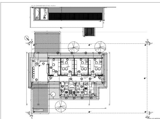
En la ocasión Susana Medina informó que en los próximos días se pondrán a la venta los pliegos correspondientes al llamado a licitación para la construcción de la obra, que se efectuará sobre un terreno de 471 metros cuadrados.
El costo estimado de la obra será de 100 millones de pesos.
Destacamos la importancia que tiene para la comunidad, poder contar con este organismo judicial y de su construcción. Tener el edificio propio es de suma importancia, ya que, permite la comodidad del trabajo de las personas que allí se desempeñan, priorizando su seguridad y bienestar.







